当前位置:
整木网>
整木新闻>
厂商专栏>
详情
手机版最新留言:
使用手机微信“扫一扫”功能,扫描以下二维码,即可将本文分享到“朋友圈”中。
2024-06-30 编辑:中国整木网 来源:网络 浏览数:6609
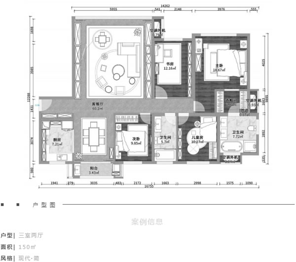
本次案例业主是温馨有爱的一家三口,注重孩子的自由成长与人格培养,大人在孩子身边更多的是协助者,而非管理者,因为设计师以“儿童为中心”的设计方向,让家变成宝贝自由成长的乐园,将自然生态与温馨闲适相融合,打造了一个尊重孩子、敬畏成长的理想“儿童之家”。

设计说明

本次案例业主是温馨有爱的一家三口,注重孩子的自由成长与人格培养,大人在孩子身边更多的是协助者,而非管理者,因为设计师以“儿童为中心”的设计方向,让家变成宝贝自由成长的乐园,将自然生态与温馨闲适相融合,打造了一个尊重孩子、敬畏成长的理想“儿童之家”。
客厅
客厅设计上偏自然,让孩子在一个自然、放松的环境中快乐成长,在与硬装造型相结合的基础上,空间色彩格外温润雅致,营造出舒适惬意的调性,像润物无声的细雨,抚慰着人的心绪,使之更加柔和与从容。

定制柜体作为沙发背景墙,采用活动的柜体,错落有致的层板叠加,不仅诠释出丰富而灵动的格调美学,还可以保证足够的收纳面积,又可以通过变换柜门的位置,维持空间秩序的整洁。
家具材质以原木、棉麻等自然元素为主,突显出浓郁的自然气息,朴雅温润。陶土或木质饰品,增加了空间的趣味性。淡绿色与黄色的跳色,让空间显得更富层次与活力。
阳台区域纳入客厅空间之后,变成了独立的儿童活动区,计师因此选用小巧、低矮并且几乎没有直角的家具,一方面方便孩子使用,另一方面也让家长近乎贴地陪同孩子,带给孩子更大的心理尊重。
专门的收纳储物柜,适合宝宝的年龄身高,方便其自己动手整理物品,锻炼收纳能力,俏皮小巧的儿童家具,拥有着糖果般的色彩,让宝宝沉浸在自己的乐园,而黑板是儿童心灵的画板,宝宝可以用画笔在上面尽情绽放缤纷的想象力。
餐厅
餐厅空间,原木的温润与绿色的淡雅,让空间在温和的底色下不乏生机,彩色个性的瓶盏与散落的桌面果实都进入了生活的静物画之中,清丽之余,又充满了生活中的烟火气。

繁华都市的灯红酒绿不及家中的人间烟火。在这里,有共享无尽的三餐,有不忍打扰的温情,有天长地久的陪伴。
厨房
厨房以经典的灰白色为主色调,明亮净洁,利用简练的线条勾勒出合理的空间格局。整体空间兼具美观与实用,让人在其中可以尽情地享受制作美食的乐趣。

书房
充满秩序的书房,采用开放式书架展示可供阅览的各类书籍,待到闲暇之时,挑选一本喜欢的书,慵懒地窝在沙发里,煮一杯咖啡或者泡一壶好茶,全身心地投入到时光的馈赠中。

儿童房
儿童房不再采用榻榻米或者高低床等等大人们所认为的布置格局,取而代之的是根据不同年龄阶段来配置相应的适合的搭配组合,根据孩子的具体成长需求,将空间的可变性做到最大。

空间整体上以烂漫童趣为主题,墙纸上选用缤纷多彩的小昆虫,启迪孩子对自然的探索。鲜艳多彩的家具与活泼的饰品组合,呵护孩子的成长岁月,见证快乐的每一天。
主卧
主卧的色彩延续了整个空间的主色调,温润而不张扬,舒适自然,又透露出一种优雅,保证了卧室的静谧环境,营造了良好的休憩之所。
背景墙上垂下的植物枝叶与零星花朵,营造出清新自然的氛围,让整个卧室别具生机。居住者可以放松身心,沉浸在这浪漫的意境之中。

家,作为爱的港湾与快乐成长的容器,在这里得到了最好的诠释,生活不在浮光掠影里,它蕴含在细节中,打造成家的乐园,与孩子一起,慢慢成长,爱与陪伴,因为珍惜,永远不会过期。
想了解这个项目,请联系我!
我想加盟,请将项目的资料发给我。
请问我所在地区有加盟商了吗?
想了解此项目的加盟流程,请联系我!
请问加盟此项目需投资多少钱?
版权与免责声明:
凡未注明稿件来源的内容均为转稿或由企业用户注册发布,本网转载出于传递更多信息的目的,如转稿涉及版权问题,请作者联系我们处理。我们对页面中展示内容的真实性、准确性和合法性均不承担任何法律责任。
如内容信息对您产生影响,请及时联系我们修改或删除。
15811192007

今天已经有 232 人获取加盟资料
激发新活力,释放新动能,大咖齐聚,闪耀门展-2023中国国际门业展览会(北京门展),中国木门网、中居联高端访谈栏目专访鑫雅迪负离子木门营销总监刘志峰。
激发新活力,释放新动能,大咖齐聚,闪耀门展-2023中国国际门业展览会(北京门展),中国木门网、中居联高端访谈栏目专访洋诚智慧木门总经理王智。
激发新活力,释放新动能,大咖齐聚,闪耀门展-2023中国国际门业展览会(北京门展),中国木门网、中居联高端访谈栏目专访戴克爱家高定刘杰。
激发新活力,释放新动能,大咖齐聚,闪耀门展-2023中国国际门业展览会(北京门展),中国木门网、中居联高端访谈栏目专访品桥木门总经理隗治洪
激发新活力,释放新动能,大咖齐聚,闪耀门展-2023中国国际门业展览会(北京门展),中国木门网、中居联高端访谈栏目专访兄弟木门营销总经理鲍壮。
2024门业及定制家居品牌峰会暨中居联杯·2023年度木门及门墙柜整装十大品牌表彰盛典圆满落幕
最近,陆陆续续有几位企业主来信来电,对当今国际局势深感焦虑,分别约我深度探讨一下当下局势及其可能的演化方向与进程,以便看清楚未来的机会和风险,并给出一些建议,以便早做准备。
让加盟更诚信 让选择更放心
立即咨询做有权威的品牌